JUAN CARLOS SABBAGH
ARQUITECTOS












Casa Iglesis
2012-2015 I Sitio 449, Condominio Hacienda de Chicureo, Colina, Santiago, RM, Chile I 350 m2
Colaboradores: Nicolás Sabbagh C. / Tomas Correa del Valle
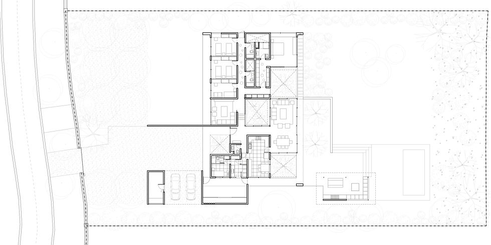
El diseño de una vivienda para una paisajista a mi parecer debía considerar una relación intencionada con el paisaje, tanto las vistas lejanas a la cordillera como la integración de la naturaleza al interior de la casa.
A través de volúmenes simples que contienen los programas que requieren mayor privacidad como baños y servicios, se fracciona el espacio en combinación de patios que integran la luz y el verde, considerando a éstos como otro recinto más del programa.
Estos patios dialogan con los recintos interiores más públicos como hall, living y comedor, los cuales al quedar envueltos por vegetación adoptan una situación ambigua y difusa de interior y exterior.
Los dormitorios en cambio se orientan al paisaje lejano, buscando el asoleamiento y las vistas a la Cordillera de los Andes del norte y el oriente.
